ProfilVita
 

Innenausbau | Projekt 4

 
2009
Eingangsbereich

 

Umbau GuteArbeit Marketing Agentur GmbH, Düsseldorf 
Planung und Fertigstellung: April – Juni 2009

 

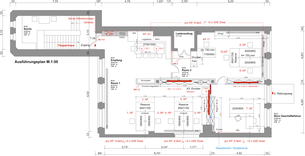
Das Raumprogramm für die Werbeagentur GuteArbeit umfasste die Gestaltung einer Fläche von 140 m2 einer alten Produktionsstätte im 3.OG. Auf dieser Fläche sollten insgesamt  10 Kreativarbeitsplätze im Typus eines Großraumbüros, sowie ein Einzelbüro für den Geschäftsinhaber entstehen.

 

   

 

Die Zonierung der Grundfläche sollte einerseits ein konzentriertes Arbeiten der einzelnen Mitarbeiter fördern und gleichzeitig noch genügend Kommunikation und Gedankenaustausch ermöglichen. Hierzu wurde ein in der  Längsachse ausgerichteter Raumteiler montiert, der  oberhalb von 2.50 m zur besseren Lichtverteilung verglast  wurde. Die Netzwerkverkabelung für die Arbeitsplätze wurden ebenfalls dort untergebracht.

 

   

 

Das Lichtkonzept besteht aus der  Kombination von fest installierten indirekt strahlenden Wandleuchten und individuellen BAP geeigneten Standleuchten an den Computerarbeitsplätzen. Der Eingangsbereich verzichtet auf eine Empfangstheke zugunsten einer kommunikativen Team- und Kundenzone.

 

 

 

Fotografie: www.behrendtundrausch.de
Marketing Agentur: www.gutearbeit.de

 

 

 

Am Egelsberg 27, 47802 Krefeld, Tel: 02151 564 974, Mobil: 0163 804 90 90, E-Mail: info@wiesehahn-architektur.de